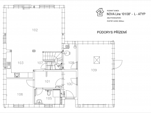
Klasik 127
Klasik 127 je stálice v naší nabídce. Označit stavbu za malý domek by přes nevelké půdorysné rozměry bylo nespravedlivé. Díky promyšlené vnitřní dispozici dům nabízí veškerý komfort, žádaný spíše od mnohem rozměrnějších objektů. Obvyklé dispoziční uspořádání obohacuje pracovna a přistavěná garáž.
Dodávka vybavení na klíč obsahuje:
- sedlová střecha se sklonem 38°
- v ceně domu garáž, základová deska a doprava
- obvodové stěny s vnitřní izolací 120 + 40 mm a vnější termofasádou 150 mm uzavřenou strukturní barevnou omítkou
- betonová střešní krytina včetně anténní tašky
- vnější dřevěné díly natřené lazurovou barvou dle vzorníku
- okapy z titanozinku
- venkovní nezámrzný zahradní ventil
- schodiště mezi přízemím a obytným podkrovím v provedení buková spárovka
- laminátová podlaha nebo koberec v obytných místnostech a na chodbě v podkroví, v ostatních místnostech dlažba
- obklady v koupelně a na WC do výše dveří
- elektroinstalace od skříně domovního rozvaděče včetně dodávky domovního rozvaděče, v místnostech jsou zabudovány zásuvky a vypínače bílé barvy
- ventilátor s hygrostatem v místnostech s vanou nebo sprchou
- instalace slaboproudu - zvonek od domovních dveří, 2 zásuvky pro kabelové připojení TV včetně kabelového rozvodu v domě
- sanitární vybavení - umyvadlo ze sanitární keramiky v bílé barvě se směšovací pákovou baterií, umývátko ze sanitární keramiky v bílé barvě se směšovací pákovou baterií, vana s pákovou baterií a se sprchovou hadicí a růžicí, sprchový kout včetně baterie se sprchovou hadicí a růžicí a kombinované WC
- přípojka pro pračku
- přípojka pro myčku
- ohřev teplé vody pomoci zásobníku 200 l
- tepelné čerpadlo vzduch/vzduch s možností vytápění nebo chlazení interiérovými splitovými klimatizačními jednotkami
- elektrické nástěnné přímotopné panely bez centrální regulace
- fotovoltaický jednofázový on GRID systém s akumulací do zásobníku TUV
- malířské práce - stěny a stropy upraveny zednickou stěrkou stupně kvality povrchu Q2, bílá malba
- kuchyňské přípojky vody, odpady a elektro v rozsahu dle typové obchodní dokumentace
- rozvody vody potrubí Alpex, kanalizace z plastových trubek
- požární bezpečnost - zařízení autonomní detekce a signalizace
- okna a terasové dveře vyrobené z 6-ti komorových PVC profilů v bílé barvě s izolačním trojsklem, součinitel prostupu tepla celého okna Uw ≤ 1,0 W/(m².K)
- vnitřní laminové dveře KASARD v provedení plné s obložkovou zárubní a protihlukovým průběžným gumovým těsněním
- dveřní kování dvoudílné rozetové
- vchodové domovní dveře v provedení masiv nebo z 5-ti komorových PVC profilů v bílé barvě se třemi závěsy a pětinásobným uzávěrem
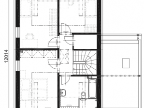
| Přízemí | Patro | Celkem |
| Předsíň 6,72 m2 | Chodba - schodiště 4,11 m2 | Užitná plocha 145,19 m2 |
| Koupelna 3,11 m2 | Koupelna, wc 7,44 m2 | Přízemní plocha 87,59 m2 |
| Kuchyň 11,10 m2 | Pokoj 1 15,94 m2 | Podkrovní plocha 57,6 m2 |
| Obývací pokoj 33,04 m2 | Pokoj 2 15,97 m2 | Rozměry domu 7,24 x 12,01 m |
| Garáž 19,35 m2 | Ložnice 11,78 m2 | Rozměry garáže 3,37 x 6,08 m |
| Technická místnost 5,51 m2 | Komora 2,42 m2 | Obestavěná plocha 618,5 m3 |
| Pracovna 8,07 m2 | Sklon střechy 38° | |
| Zádvěří 3,42 m2 |











































































































































