Nové domy v naší nabídce
Představujeme vám dva nové přírůstky v našem katalogu. Tyto domy nejsou jen o kvalitním bydlení, ale o životním stylu, který spojuje moderní design, komfort a úspory. Díky prostorným interiérům a moderním technologiím jsou ideální pro každou rodinu, která hledá domov s duší.
BUNGALOV 124
BUNGALOV 148
Vše, co potřebujete, máte v ceně
Proč si vybrat právě tyto domy? U obou modelů je zahrnuto tepelné čerpadlo, fotovoltaické panely a základová deska – to vše v ceně. Navíc s těmito domy přichází nízké provozní náklady, které vás budou těšit i po nastěhování.
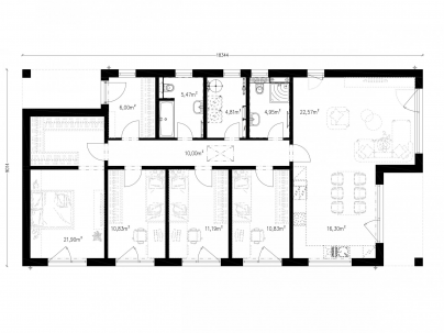
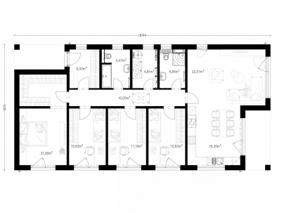
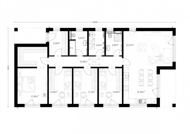
Bungalov 124
Dispozice 5+1 se 125 m² staví na velkém obytném prostoru ve tvaru L, který umožňuje přirozený kontakt všech členů domácnosti a zároveň dává prostoru strukturu.
Dům nabízí dostatek místností pro rodinu i návštěvy, dvě koupelny pro každodenní komfort a chytré úložné prostory včetně přístupné půdy. Částečně krytá terasa rozšiřuje obytný prostor ven a dělá z domu místo, kde se dobře žije po celý rok.
Ideální volba pro ty, kteří hledají otevřený prostor s velkým obývacím prostorem a přirozenou atmosférou rodinného života.
Bungalov 148
Atypický bungalov pro klienty, kteří hledají výraznou architekturu a velkorysý prostor. Dům je rozdělen do dvou částí, které přirozeně oddělují společenskou a klidovou část, a zároveň je propojuje chráněné poloatrium – soukromý venkovní prostor v samotném srdci domu.
Dominantou je obytný prostor s otevřeným stropem, který je propojený se zahradou ze všech hlavních místností. Dispozice 5+kk na 145 m² nabízí vysoký standard bydlení: pracovnu s variabilním využitím, ložnici s vlastní koupelnou a šatnou i silné propojení interiéru s exteriérem.
Dům je navržen jako zážitek z prostoru, světla a klidu – pro ty, kteří chtějí bydlení s charakterem.













